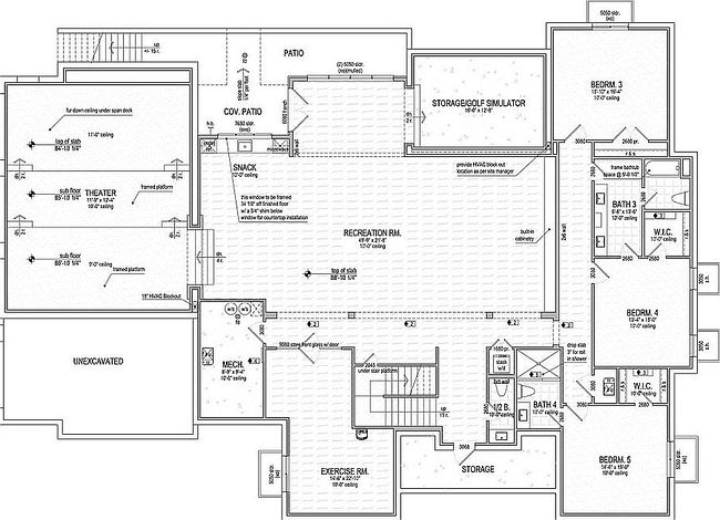
Sophistication and grandeur unite in this magnificent 8,646 square foot estate, perfectly positioned on a serene half-acre lot. With five bedrooms and six luxurious bathrooms, this residence offers an ideal balance of formal entertaining spaces and comfortable family living areas.
The expansive floorplan showcases soaring ceilings and thoughtfully designed living spaces that flow seamlessly from room to room. The gourmet kitchen serves as the heart of the home, complemented by elegant formal dining and living areas. The private owner's retreat provides a peaceful sanctuary, while four additional bedrooms ensure comfortable accommodations for family and guests. The meticulously landscaped grounds create an outdoor oasis, perfectly suited for both relaxation and entertainment.